RIMINI - NUOVA COSTRUZIONE |
| Riferimento: APPARTAMENTO 12 |
|
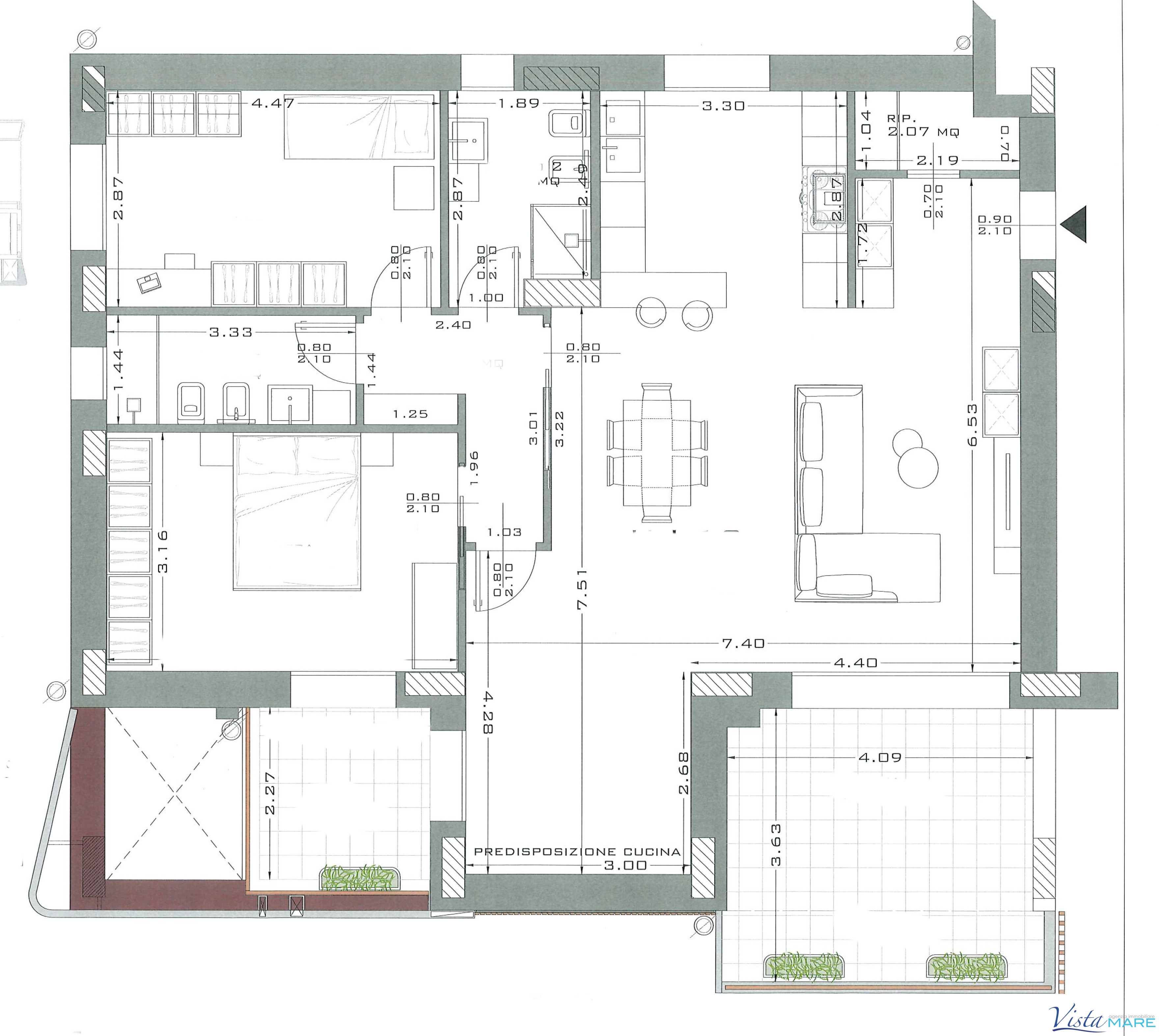
Mq 141
Piano Quarto
|
| Informazioni in ufficio |
RIMINI - A ridosso dell'omonimo parco, nel nuovo contesto residenziale denominato "Residenza XXV Aprile", appartamento di ampia metratura posto al piano quarto e servito da ascensore. L'immobile gode di un'esclusiva zona living di oltre 50 mq ed è dotato di due camere da letto e due bagni. Completano il tutto due ampie logge abitabili. La posizione della costruzione consente di raggiungere sia la nuova Darsena che il centro storico della città ed è dotata di ogni confort che la massima efficienza energetica richiede garantendo standard abitativi elevati. Il capitolato offerto dalla direzione lavori propone materiali di alta qualità prevedendo già pavimentazione in rovere nella zona notte e ceramiche di prima scelta nei restanti ambienti, ventilazione meccanica per il ricircolo dell'aria, porte scorrevoli ove necessarie, predisposizione di impianto anti intrusione con sensori posizionati in tutte le aperture (porta ingresso e finestre). Tecnologie innovative verranno utilizzate al fine di limitare le emissioni inquinanti; l'intera costruzione sarà dotata di impianto di riscaldamento e raffrescamento centralizzato conforme alle recenti normative europee e prevede pannelli radianti a pavimento per il riscaldamento mentre, per il sistema di raffrescamento, sono previsti split ad acqua con contabilizzazione del calore per ogni singola unità abitativa. L'impianto fotovoltaico fara' da supporto all' impianto elettrico condominiale. Disponibili garages si diverse metrature. Visitate il nostro sito e contattateci per ulteriori dettagli ed informazioni.
L’Agenzia Immobiliare “Vista Mare” ha la sua sede storica in Via Torre 18/B a Bellaria (RN) e a Rimini città in C. so Giovanni XXIII n° 15. Vista Mare nasce nel 1996 e, da 27 anni è ormai un punto di riferimento nello scenario immobiliare di Rimini e provincia. Esperti di vendite e locazioni, accompagniamo il cliente in tutte le fasi della trattativa, dalla presa in carico iniziale fino alla conclusione dell’affare. Ci caratterizza il continuo aggiornamento in materia che ci consente di poter trattare tutte le svariate tipologie di operazioni immobiliari con la massima competenza e serietà. Ci caratterizza il creare un rapporto di massima trasparenza e chiarezza su tutte le varie fasi di vendita e/o acquisto e/o locazione. Chiunque si rivolge a noi sa bene che si rivolge a professionisti del settore ma, soprattutto, a persone attente a tutti gli aspetti tecnici e urbanistici degli immobili, proponendo o suggerendo anche possibili trasformazioni o cambiamenti agli stessi. Tra i servizi che offriamo figurano stime immobiliari, aggiornamenti continui sulle varie normative ed anche un servizio di piccole e grandi ristrutturazioni. Visitate il nostro sito web: e contattateci per qualunque esigenza allo per l'ufficio di Bellaria o allo per l'ufficio di Rimini. Seguiteci anche sulle nostre pagine Facebook ed Instagram. | ||||||||||||||||||||||||||||
|
RIMINI - NUOVA COSTRUZIONE |
| Riferimento: APPARTAMENTO 12 |
|
Mq 141
Piano Quarto
|
| Informazioni in ufficio |
|
Calcola la rata del mutuo
|
0541 1795200 |
![]() RICHIEDI INFORMAZIONI SU QUESTO IMMOBILE |
STAMPA |



Associato 2015